Projekty domów –
Tromso 188

4

2
DODATKOWE INFORMACJE:
WYSOKI SALON
OGRÓD ZIMOWY
DWUSTANOWISKOWY GARAŻ
ANTRESOLA
SPIŻARNIA
FOTOWOLTAIKA
POWIERZCHNIA UŻYTKOWA:
188 m2
POWIERZCHNIA GARAŻU:
45 m2
MINIMALNE WYMIARY DZIAŁKI:
27x 27,5 m
KOSZT BUDOWY OD:
SKONTAKTUJ SIĘ Z NAMI
TERMIN REALIZACJI:
od 7 miesięcy

opis budynku
Tromso 188
TROMSO to seria domów połączonych z 2 brył prostopadłych, z których jedna jest przesunięta względem drugiej tworząc kształt litery T, co pozwala łatwo podzielić dom na różne strefy w zależności od potrzeb.
TROMSO 188 to dom parterowy z dachem skośnym, w którym ogród zimowy jest wkomponowany w bryłę budynku, a salon posiada wysoki sufit. Dom posiada łazienkę, toaletą oraz 3 sypialnie, które mogą zostać zaaranżowane również jako przestrzeń do pracy czy pokój rekreacyjno-sportowy.
Na parterze znajduje się także dwustanowiskowy garaż. Nad częścią domu jest antresola, która może zostać zaaranżowana jako biblioteka, miejsce relaksu lub dodatkowy pokój gościnny.
Dom dla 3-5 osobowej rodziny w zależności od wykorzystanie poszczególnych pomieszczeń.
Co wyróżnia Tromso 188?

PODZIAŁ NA STREFY
W tym parterowym domu cześć dzienna i nocna są jasno wydzielone zapewniać komfort w codziennym życiu.

CZĘŚĆ DZIENNA Z WYSOKIM SALONEM
Przestronny salon z wysokim sufitem i widokiem na ogród – idealne miejsce na wspólne chwile z najbliższymi.

PARTEROWY DOM OTWARTY NA 4 STRONY ŚWIATA
Kształt domu pozwala odseparować się od sąsiadów i stworzyć intymną przestrzeń relaksu.

Galeria

ANIMACJE

rozmieszczenie pomieszczeń
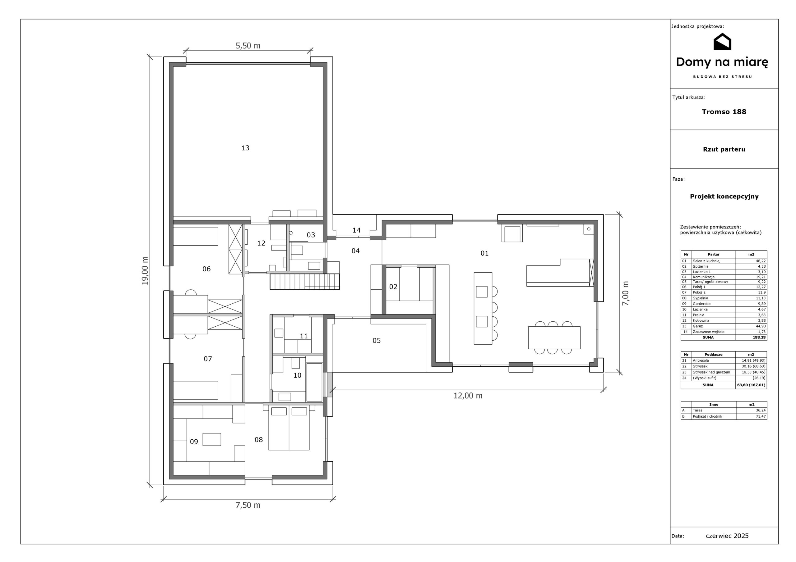
RZUT PARTERU
POWIERZCHNIA
188,3 m2
1. SALON Z JADALNIĄ
48,2m2
2. SPIŻARNIA
4,4 m2
3. ŁAZIENKA
3,2 m2
4. KOMUNIKACJA
19,2 m2
5. OGRÓD ZIMOWY / TARAS
9,2 m2
6. GABINET
12,3 m2
7. GABINET
11,9 m2
8. SYPIALNIA
11,1 m2
9. GARDEROBA
9,9 m2
10. ŁAZIENKA
4,7 m2
11. PRALNIA
3,6 m2
12. KOTŁOWNIA
3,9 m2
13. GARAŻ
45 m2
14. ZADASZONE WEJŚCIE
1,9 m2

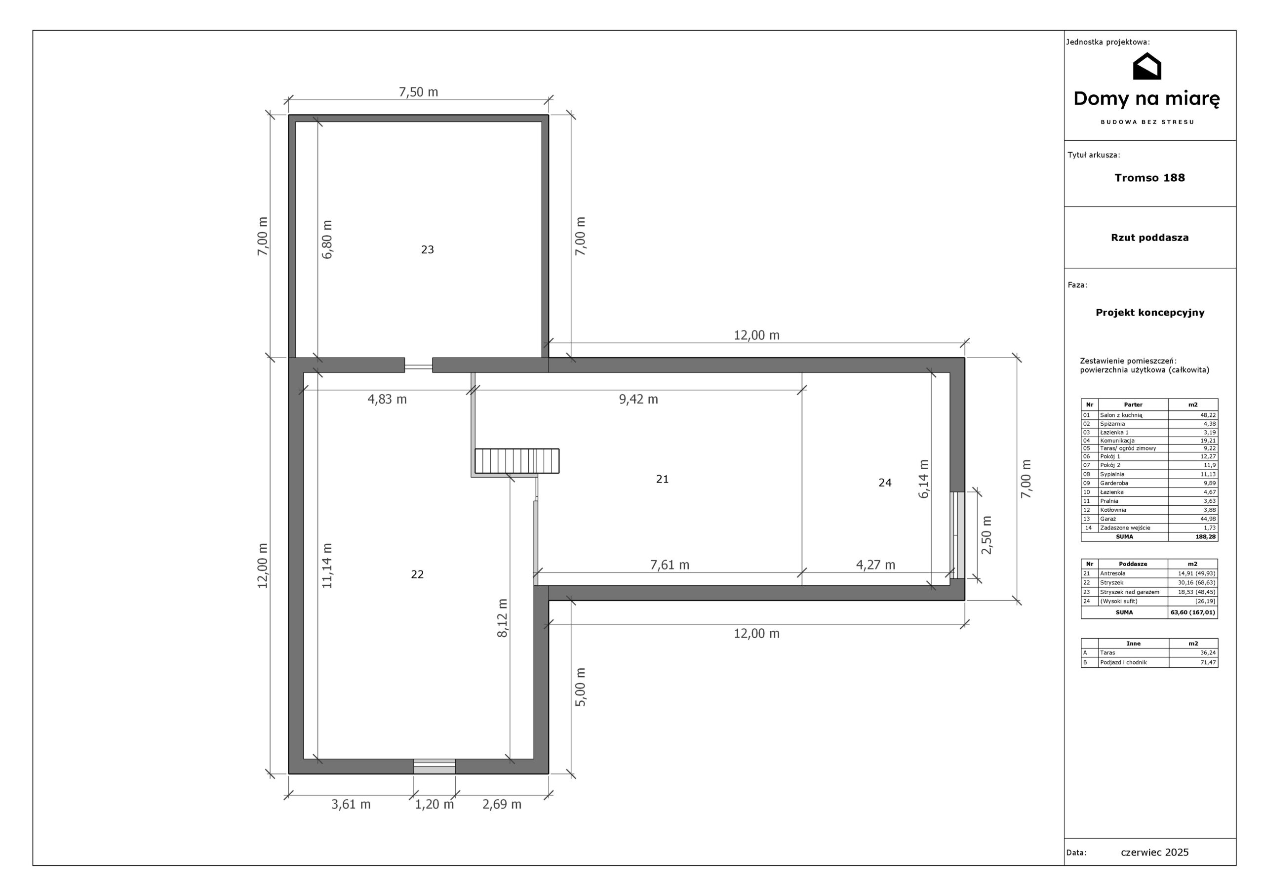
RZUT PODDASZA
POWIERZCHNIA
63,6 m2
1. ANTRESOLA
14,9 m2
2. STRYSZEK
30,2 m2
3. STRYSZEK NAD GARAŻEM
18,5 m2


KOSZT BUDOWY – SKONTAKTUJ SIĘ Z NAMI
- dom murowany energooszczędny
- ogrzewanie podłogowe, rekuperacja
- kocioł gazowy lub pompa ciepła
- cena stanu deweloperskiego jest wyceniana po spotkaniu i ustaleniu szczegółów
STANDARD BUDOWY
- ławy fundamentowe lub płyta fundamentowa
- dom murowany z silikatów
- ogrzewanie podłogowe, rekuperacja
- kocioł gazowy lub pompa ciepła
- stropy prefabrykowane lub monilityczne
- stolarka okienna i drzwiowa PCV lub aluminium
- ocieplenie ścian styropian lub wełna 25 cm
- ocieplenie podłogi styropian 20 cm
- pokrycie dachu z blachodachówki, blachy na rąbek lub dachówki płaskiej

DO POBRANIA
Znajdziesz tu szczegółowe informacje o wymiarach zewnętrznych budynku i wielkości jego pomieszczeń.
W przygotowaniu.
W przygotowaniu.
















