Projekty domów –
Helsinki 259

4

2
DODATKOWE INFORMACJE:
WYSOKI SALON
OGRÓD ZIMOWY
GARAŻ
PRALNIA
SPIŻARNIA
FOTOWOLTAIKA
POWIERZCHNIA UŻYTKOWA:
259 m2
POWIERZCHNIA GARAŻU:
56 m2
MINIMALNE WYMIARY DZIAŁKI:
23 x 23 m
KOSZT BUDOWY:
SKONTAKTUJ SIĘ Z NAMI
TERMIN REALIZACJI:
od 7 miesięcy

opis budynku
Helsinki 259
HELSINKI to seria domów zbudowanych z dwóch równoległych brył z łącznikiem z płaskim dachem lub skośnym dachem. Budynek tworzy kształt litery H. Obie bryły mogą być parterowe lub jedna parterowa a druga piętrowa.
HELSINKI 259 to dom z bardzo jasnym podziałem na strefy. W mniejszym budynku mieści się część dzienna z wysokim salonem oraz jadalnią – serce domu oraz pokój do pracy. Większy budynek z poddaszem to część prywatna – na parterze zaprojektowano wydzieloną kuchnię ze spiżarnią, ogród zimowy z dodatkową kuchnią letnią idealną na spotkania z najbliższymi i wspólne gotowanie. Na poddaszu znajdują się dwie przestronne sypialnie, duża garderoba, druga łazienka pralnia i balkon.
Na parterze znajduje się także dwustanowiskowy garaż połączony z kotłownią.
Zabudowę działki uzupełnia strefa relaksu z ogrodem zimowym, paleniskiem oraz basenem zewnętrznym.
Dom dla 4-6 osobowej rodziny w zależności od wykorzystanie poszczególnych pomieszczeń.
Co wyróżnia Helsinki 259?

PODZIAŁ NA STREFY
Mniejszy budynek to strefa dzienna, większy prywatna część domu z przestronnymi sypialniami.

CZĘŚĆ DZIENNA Z WYSOKIM SALONEM
Przestronny salon z wysokim sufitem i widokiem na ogród – idealne miejsce na wspólne chwile z najbliższymi.

OGRÓD ZIMOWY W BRYLE
Właścicielom zależało na możliwości miejscu wspólnych spotkań z najbliższymi – ogród zimowy z dodatkową letnią kuchnią to idealne miejsce na takie okazje.

Galeria

ANIMACJE

rozmieszczenie pomieszczeń
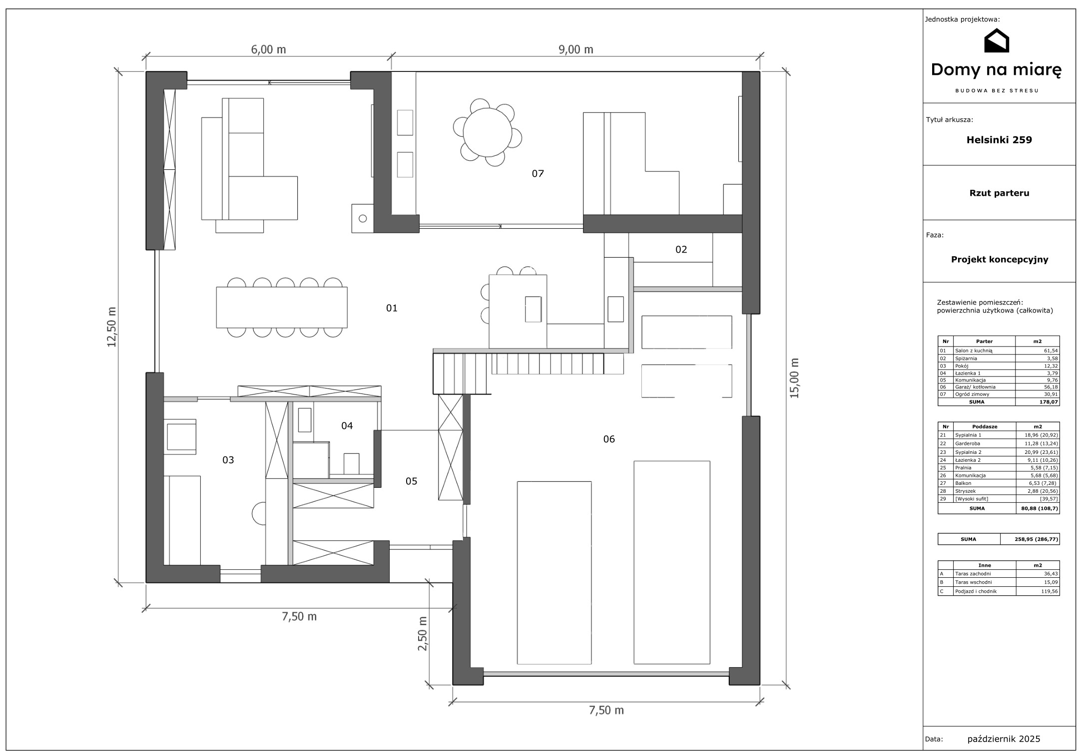
RZUT PARTERU
POWIERZCHNIA
178,1 m2
1. SALON Z JADALNIĄ
61,5 m2
2. SPIŻARNIA
3,6 m2
3. POKÓJ
12,3 m2
4. ŁAZIENKA
3,8 m2
5. KOMUNIKACJA
9,8 m2
6. GARAŻ / KOTŁOWNIA
56,2 m2
7. OGRÓD ZIMOWY
30,9 m2

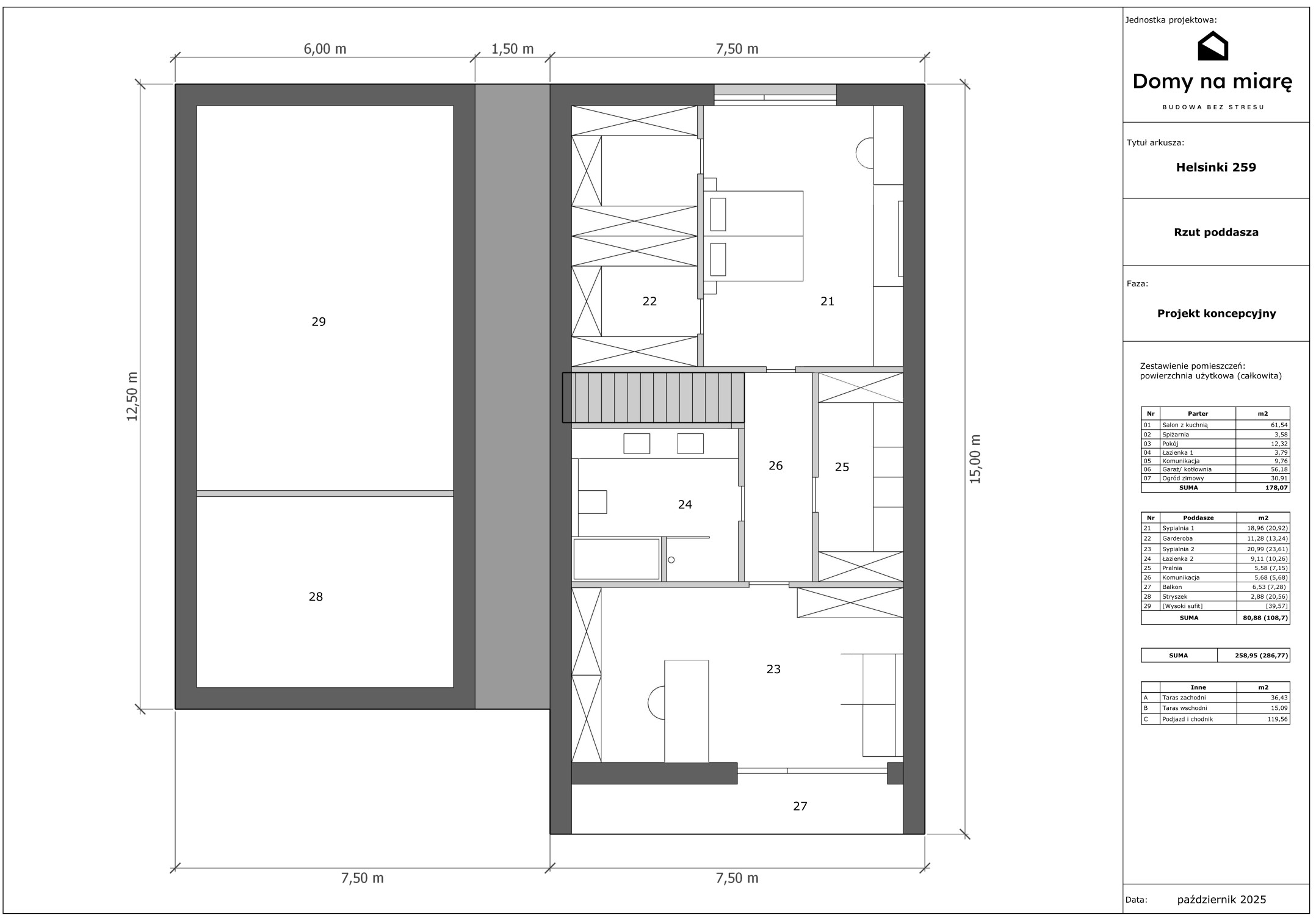
RZUT PIĘTRA
POWIERZCHNIA
80,9 m2
1. SYPIALNIA
18,9 m2
2. GARDEROBA
11,3 m2
3. SYPIALNIA
21,0 m2
4. ŁAZIENKA
9,1 m2
5. PRALNIA
5,6 m2
6. KOMUNIKACJA
5,7 m2
7. BALKON
6,5 m2
7. STRYSZEK
2,9 m2


DO POBRANIA
Znajdziesz tu szczegółowe informacje o wymiarach zewnętrznych budynku i wielkości jego pomieszczeń.
















