Projekty domów –
Oslo 170

5

2
DODATKOWE INFORMACJE:
TARASY
PRALNIA
DOM NA WĄSKĄ DZIAŁKĘ
WIATA
SPIŻARNIA
FOTOWOLTAIKA
POWIERZCHNIA UŻYTKOWA:
170 m2
POWIERZCHNIA WIATY:
18 m2
MINIMALNE WYMIARY DZIAŁKI:
26 x 12,5 m
KOSZT BUDOWY OD:
SKONTAKTUJ SIĘ Z NAMI
TERMIN REALIZACJI:
od 7 miesięcy

opis budynku
Oslo 170
OSLO to seria domów na planie wąskiego prostokąta (6-7m szerokości) o prostej bryle w stylu nowoczesnej stodoły, parterowe lub z poddaszem użytkowym, z możliwością zastosowania wysokiego sufitu w salonie, z opcją dobudowania od razu lub w późniejszym etapie wiaty/ garażu 1-2 stanowiskowego oraz tarasu/ ogrodu zimowego.
OSLO 170 to dom, który zaprojektowaliśmy dla klienta posiadającego wąską długą działkę. Na parterze oraz na poddaszu zaprojektowano tarasy. Zarówno frontowa, jak i tylna ściana posiada duże trapezowe okna, co pozwala na doskonałe doświetlenie części dziennej oraz wszystkich sypialni.
Na parterze znajduje się część dzienna – przestronny salon oraz biuro, zaś piętro to część prywatna z trzema sypialniami i drugą łazienką oraz garderobą przy głównej sypialni.
Zabudowę działki uzupełnia wiata, na której tyłach można wydzielić ogród zimowy lub taras.
Dom dla 4-6 osobowej rodziny w zależności od wykorzystanie poszczególnych pomieszczeń.
Co wyróżnia Oslo 170?

DUŻE TRAPEZOWE OKNA
Zastosowanie dużych przeszkleń zapewnia, że do wnętrza wpada dużo naturalnego światła.

TARASY NA PARTERZE I PODDASZU
Właścicielom zależało na miejscu do relaksu nie tylko na głównym tarasie, stąd tarasy również na poddaszu.

PRZESTRONNA CZĘŚĆ DZIENNA
Salon i kuchnia to serce domu – w tym projekcie zadbaliśmy o to, aby część dzienna sprzyjała spędzaniu czasu razem.

Galeria

ANIMACJE

rozmieszczenie pomieszczeń
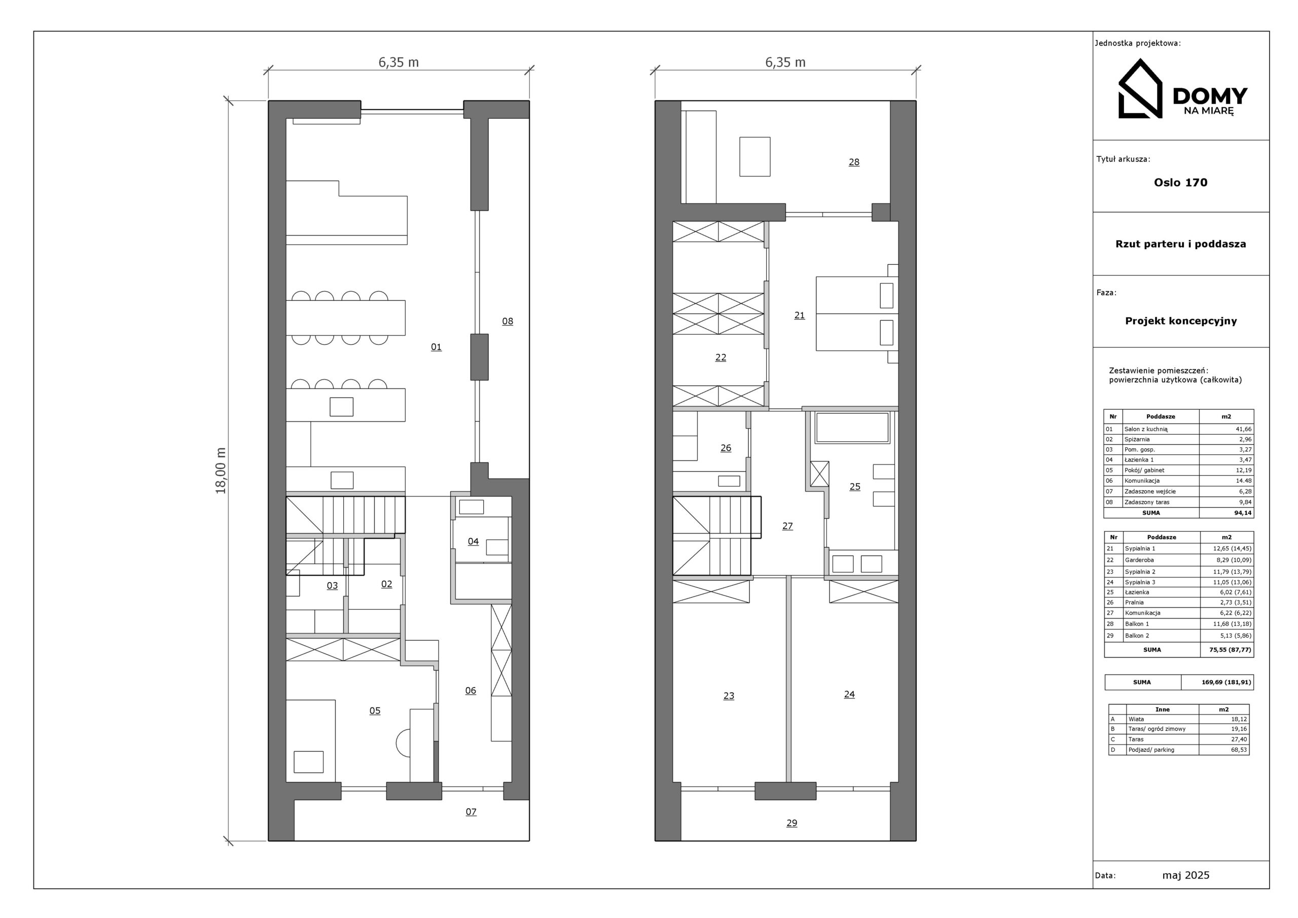
RZUT PARTERU
POWIERZCHNIA
94,1 m2
1. SALON Z JADALNIĄ
41,7 m2
2. SPIŻARNIA
3,0 m2
3. POM. GOSPODARCZE
3,3 m2
4. ŁAZIENKA
3,5 m2
5. POKÓJ / GABINET
12,2 m2
6. KOMUNIKACJA
14,5 m2
7. ZADASZONE WEJŚCIE
6,3 m2
8. ZADASZONY TARAS
9,8 m2

RZUT PIĘTRA
POWIERZCHNIA
75,6 m2
1. SYPIALNIA
12,7 m2
2. GARDEROBA
8,3 m2
3. SYPIALNIA
11,8 m2
4. SYPIALNIA
11,0 m2
5. ŁAZIENKA
6,0 m2
6. PRALNIA
2,3 m2
7. KOMUNIKACJA
6,2 m2
8. BALKON
11,7 m2
9. BALKON
5,1 m2

DO POBRANIA
Znajdziesz tu szczegółowe informacje o wymiarach zewnętrznych budynku i wielkości jego pomieszczeń.
























