
opis budynku
Platt 157
PLATT to seria domów z dachem płaskim, zarówno parterowych jak i piętrowych, których układ funkcjonalny jest dopasowany do potrzeb Mieszkańców poprze podział domu na różne strefy.
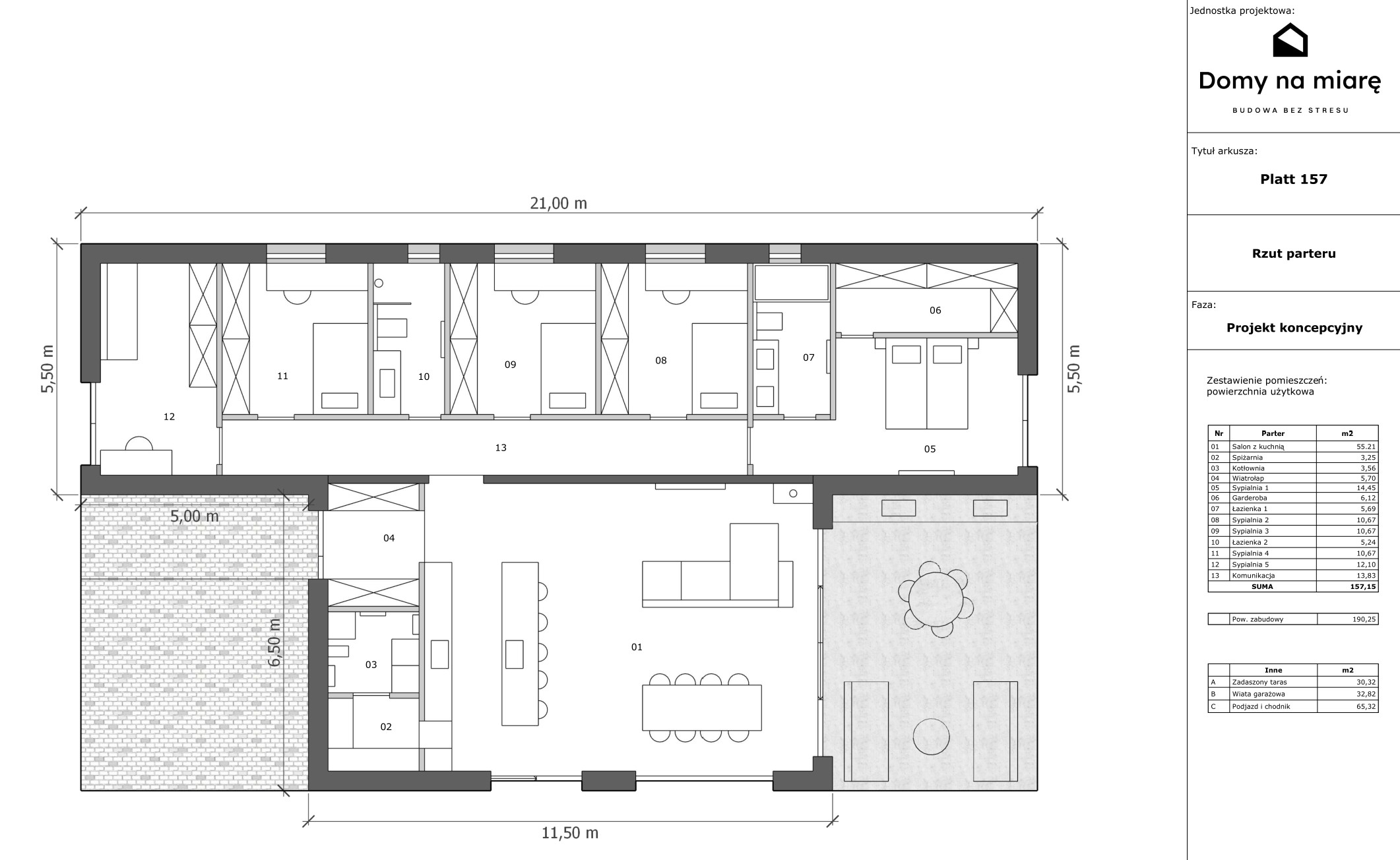
PLATT 157 to dom parterowy z dachem płaskim, w którym przestronny taras jest wkomponowany w bryłę budynku, a salon posiada wysoki sufit. Dom posiada 2 łazienki oraz aż 5 sypialni, które mogą zostać zaaranżowane również jako przestrzeń do pracy czy pokój rekreacyjno-sportowy.
To dom z bardzo jasnym podziałem na strefę dzienną oraz nocną z osobnym wydzielonym apartamentem, w którym znajduje się główna sypialnia z łazienką i garderobą. Centralną część domu stanowi przestronny salon z otwartą kuchnią, spiżarnią i jadalnią. Duże przeszklenia zapewniają doskonałe doświetlenie oraz widok na ogród. W domu zaprojektowano 1 stanowiskową wiatę.
Całości dopełnia strefa relaksu – taras oraz sauna z jacuzzi, która może zostać zaaranżowana w części ogrodowej.
Dom dla 4-7 osobowej rodziny w zależności od wykorzystanie poszczególnych pomieszczeń.
Co wyróżnia Platt 157?

PODZIAŁ NA STREFY
Ten parterowy dom został podzielony na część dzienną i nocną, dla pełnego komfortu i wygody mieszkańców.

CZĘŚĆ DZIENNA Z WYSOKIM SALONEM
Przestronny salon z podwyższonym sufitem i widokiem na ogród – idealne miejsce na wspólne chwile z najbliższymi.

MOŻLIWOŚĆ DOBUDOWANIA STREFY REKALSU
Właściciela marzyli o prywatnym spa, zaprojektowaliśmy więc saunę z jacuzzi na tyłach domu.

Galeria

ANIMACJE

rozmieszczenie pomieszczeń

DO POBRANIA
Znajdziesz tu szczegółowe informacje o wymiarach zewnętrznych budynku i wielkości jego pomieszczeń.






















