
opis budynku
Platt 220
PLATT to seria domów z dachem płaskim, zarówno parterowych jak i piętrowych, których układ funkcjonalny jest dopasowany do potrzeb Mieszkańców poprze podział domu na różne strefy.
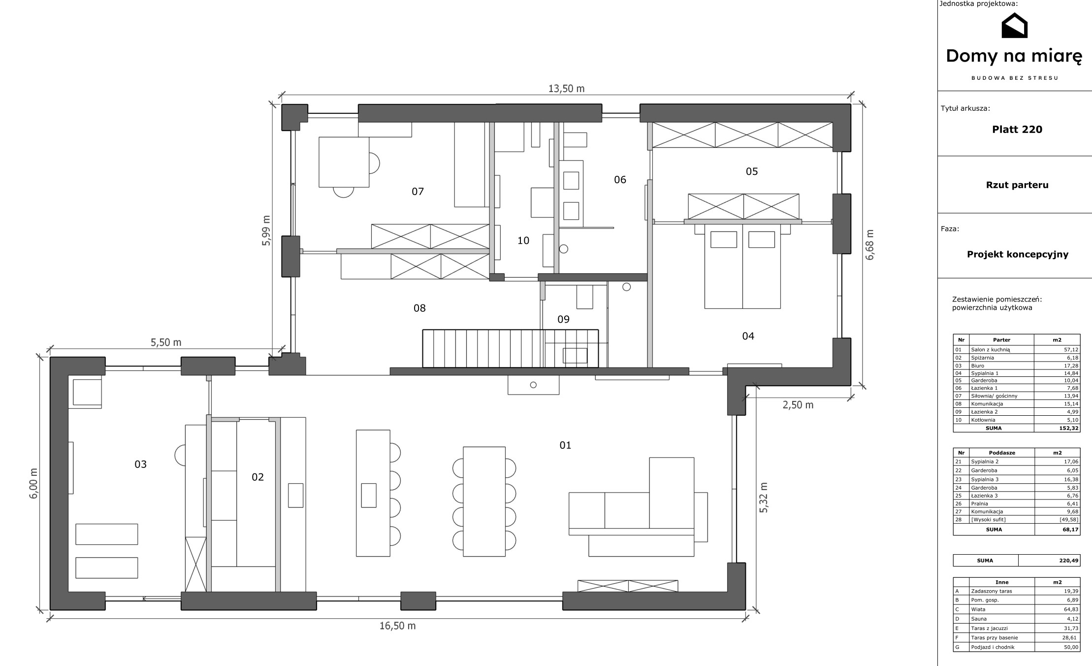
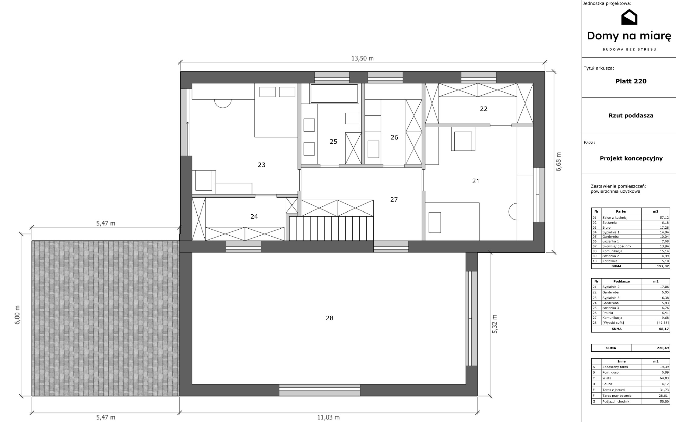
PLATT 220 to dom piętrowy z dachem płaskim, w którym ogród zimowy jest wkomponowany w bryłę budynku, a salon posiada wysoki sufit. Dom posiada 3 łazienki oraz 5 sypialni, które mogą zostać zaaranżowane również jako przestrzeń do pracy czy pokój rekreacyjno-sportowy.
To dom z bardzo jasnym podziałem na strefę dzienną oraz nocną z osobnym wydzielonym apartamentem, w którym znajduje się główna sypialnia z łazienką i przestronną garderobą. Centralną część domu stanowi salon z otwartą kuchnią z wyspą i jadalnią. Duże przeszklenia zapewniają doskonałe doświetlenie oraz widok na ogród. W domu zaprojektowano 2 stanowiskową wiatę garażową. Na piętrze 2 przestronne sypialnie, łazienka oraz pralnia.
Całości dopełnia strefa relaksu – tarasy, basen, jacuzzi – idealna przestrzeń na spotkania z najbliższymi i wspólne popołudnia.
Dom dla 5-7 osobowej rodziny w zależności od wykorzystanie poszczególnych pomieszczeń.
Co wyróżnia Platt 220?

PODZIAŁ NA STREFY
Ten piętrowy dom został podzielony na część dzienną i nocną, dla pełnego komfortu i wygody mieszkańców.

CZĘŚĆ DZIENNA Z WYSOKIM SALONEM
Przestronny salon z podwyższonym sufitem i widokiem na ogród – idealne miejsce na wspólne chwile z najbliższymi.

MOŻLIWOŚĆ DOBUDOWANIA STREFY REKALSU
Projekt pozwala na dobudowanie strefy relaksu – ogród zimowy, sauna, jacuzzi i basen. Idealny relaks we własnym domu.

Galeria

ANIMACJE – w przygotowaniu

rozmieszczenie pomieszczeń

DO POBRANIA
Znajdziesz tu szczegółowe informacje o wymiarach zewnętrznych budynku i wielkości jego pomieszczeń.



































