
opis budynku
Platt 223
PLATT to seria domów z dachem płaskim, zarówno parterowych jak i piętrowych, których układ funkcjonalny jest dopasowany do potrzeb Mieszkańców poprze podział domu na różne strefy.
PLATT 223 to dom parterowy z dachem płaskim, w którym ogród zimowy jest wkomponowany w bryłę budynku, a salon posiada wysoki sufit. Dom posiada 2 łazienki, toaletą oraz 5 sypialni, które mogą zostać zaaranżowane również jako przestrzeń do pracy czy pokój rekreacyjno-sportowy.
To dom z bardzo jasnym podziałem na strefę dzienną oraz nocną z osobnym wydzielonym apartamentem, w którym znajduje się główna sypialnia z łazienką. Centralną część domu stanowi przestronny salon z częściowo wydzieloną kuchnią i jadalnią. Duże przeszklenia zapewniają doskonałe doświetlenie oraz widok na ogród. W domu zaprojektowano 1 stanowiskowy garaż.
Całości dopełnia strefa relaksu – tarasy, basen oraz dodatkowa kuchnia letnia – doskonała na spotkania z najbliższymi i wspólne popołudnia.
Dom dla 5-7 osobowej rodziny w zależności od wykorzystanie poszczególnych pomieszczeń.
Co wyróżnia Platt 223?

PODZIAŁ NA STREFY
Ten parterowy dom został podzielony na część dzienną i nocną, dla pełnego komfortu i wygody mieszkańców.

CZĘŚĆ DZIENNA Z WYSOKIM SALONEM
Przestronny salon z podwyższonym sufitem i widokiem na ogród – idealne miejsce na wspólne chwile z najbliższymi.

MOŻLIWOŚĆ DOBUDOWANIA STREFY REKALSU
Właściciela marzyli o letniej kuchni połączonej z tarasem, gdzie w ciepłe dni można wspólnie gotować i relaksować się przy basenie. Strefę dopełnia ogród zimowy

Galeria

ANIMACJE

rozmieszczenie pomieszczeń
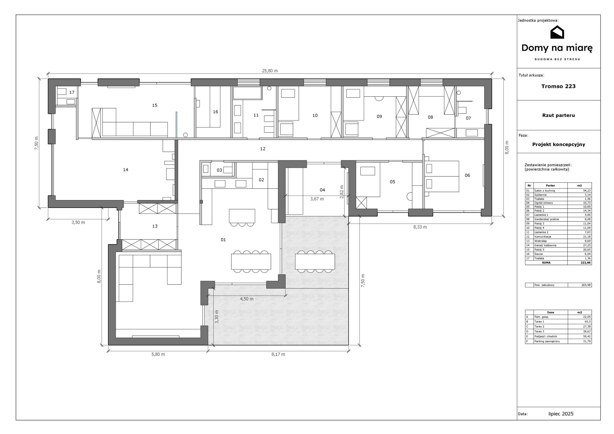
RZUT PARTERU
POWIERZCHNIA
222,7 m2
1. SALON Z KUCHNIĄ
54,2 m2
2. SPIŻARNIA
3,1 m2
3. TOALETA
1,6 m2
4. OGRÓD ZIMOWY
10,7 m2
5. POKÓJ
10,7 m2
6. POKÓJ
14,3 m2
7. ŁAZIENKA
5,0 m2
8. GARDEROBA / PRALNIA
8,1 m2
9. POKÓJ
11,0 m2
10. POKÓJ
11,0 m2
11. ŁAZIENKA
7,3 m2
12. KOMUNIKACJA
21,2 m2
13. WIATROŁAP
8,7 m2
14. GARAŻ / KOTŁOWNIA
27,2 m2
15. POKÓJ
20,7 m2
16. SAUNA
6,0 m2
17. TOALETA
1,4 m2

DO POBRANIA
Znajdziesz tu szczegółowe informacje o wymiarach zewnętrznych budynku i wielkości jego pomieszczeń.




















