
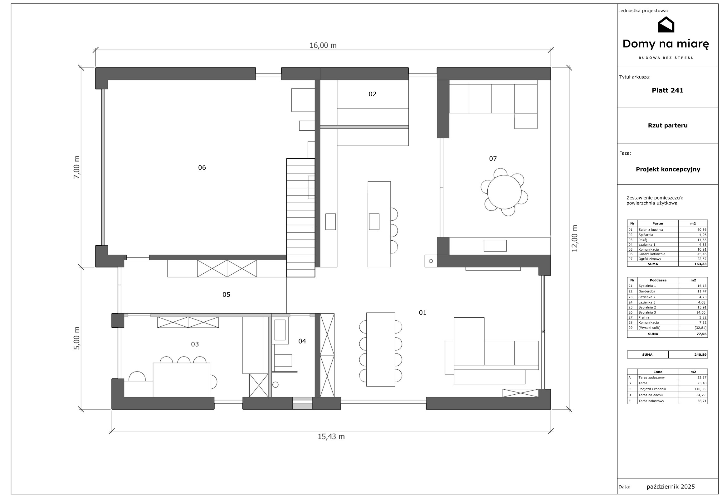
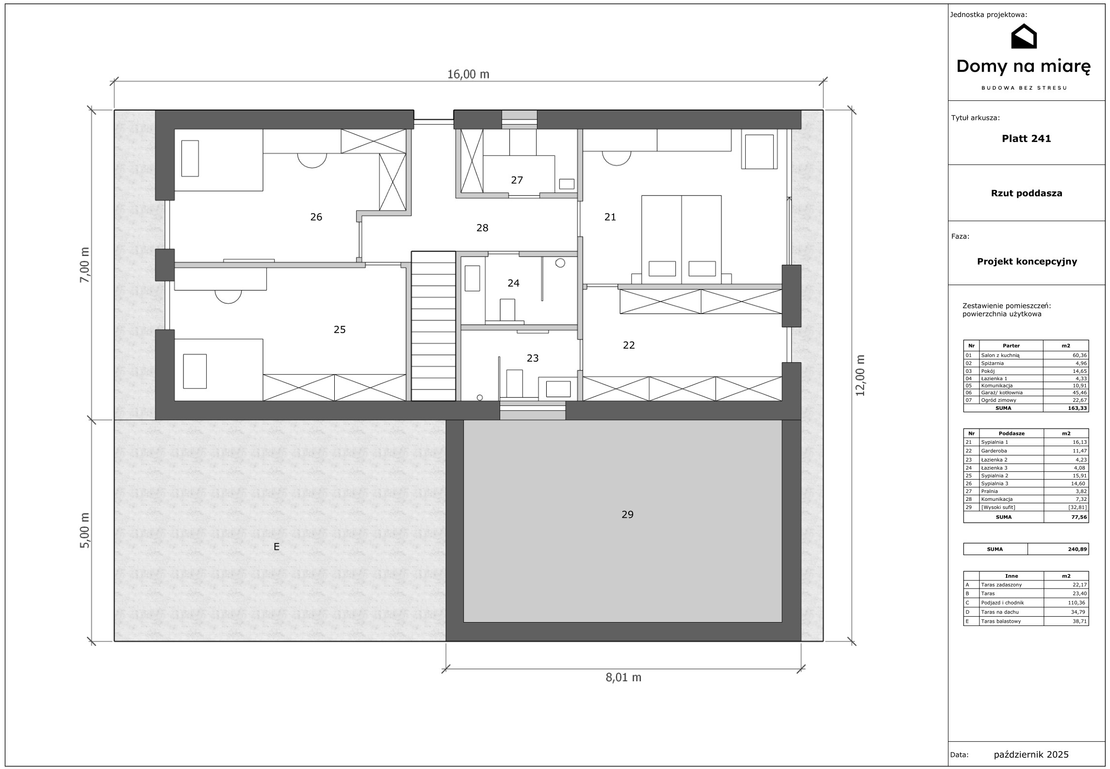
opis budynku
Platt 241
PLATT to seria domów z dachem płaskim, zarówno parterowych jak i piętrowych, których układ funkcjonalny jest dopasowany do potrzeb Mieszkańców poprze podział domu na różne strefy.
PLATT 241 to dom piętrowy z dachem płaskim, w którym ogród zimowy jest wkomponowany w bryłę budynku, a salon posiada wysoki sufit. Dom posiada 3 łazienki oraz 4 sypialnie, które mogą zostać zaaranżowane również jako przestrzeń do pracy czy pokój rekreacyjno-sportowy.
To dom z bardzo jasnym podziałem na strefę dzienną oraz nocną z osobnym wydzielonym apartamentem, w którym znajduje się główna sypialnia z łazienką i przestronną garderobą. Centralną część domu stanowi salon z częściowo wydzieloną kuchnią i jadalnią. Z kuchni prowadzi przejście do części wypoczynkowej, gdzie znajduje się jacuzzi zewnętrzne. Duże przeszklenia zapewniają doskonałe doświetlenie oraz widok na ogród. W domu zaprojektowano 2 stanowiskowy garaż, a na piętrze dodatkowy taras z wyjściem z sypialni.
Całości dopełnia strefa relaksu – tarasy, basen, jacuzzi oraz dodatkowa kuchnia letnia – doskonała na spotkania z najbliższymi i wspólne popołudnia.
Dom dla 5-7 osobowej rodziny w zależności od wykorzystanie poszczególnych pomieszczeń.
Co wyróżnia Platt 241?

PODZIAŁ NA STREFY
Ten piętrowy dom został podzielony na część dzienną i nocną, dla pełnego komfortu i wygody mieszkańców.

CZĘŚĆ DZIENNA Z WYSOKIM SALONEM
Przestronny salon z podwyższonym sufitem i widokiem na ogród – idealne miejsce na wspólne chwile z najbliższymi.

MOŻLIWOŚĆ DOBUDOWANIA STREFY REKALSU
Właściciela marzyli o miejscu do relaksu – jacuzzi i saunie, stworzyliśmy taką przestrzeń pod zadaszeniem, dla większego komfortu. Dodatkowo ogród zimowy z letnią kuchnią oraz basen. Pełnia relaksu we własnym domu.

Galeria

ANIMACJE

rozmieszczenie pomieszczeń

DO POBRANIA
Znajdziesz tu szczegółowe informacje o wymiarach zewnętrznych budynku i wielkości jego pomieszczeń.

































